Баня 1,5эт. 6х6м
Оставьте заявку
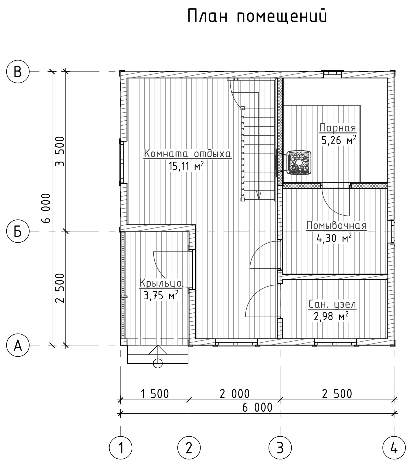
Комплектация дома
|
Спецификация бани со сборкой на участке |
|
|
Фундамент |
Заказчик устанавливает своими силами либо 3 лицом (свайно –винтовой) - 16шт |
|
Обвязка |
Брус 150х200 мм, обработан антисептиком |
|
Стены бани (сруб) |
Профилированный брус прямого прострога сечение 142х142 мм в чистом виде. Сборка на пружинные блоки. Межвенцовая прокладка льно полотно Джут |
|
Обработка бани |
Снаружи баня полностью обработана антисептиком «Сенеж ультра» |
|
Половые лаги |
Выполнены из бруса 150х100 мм. Обработаны антисептиком, промежуточные лаги 150х50 |
|
Пароизоляция |
Эколайф А или Наноизол В |
|
Утеплитель пол и потолок |
Минеральная вата типа Knauf, ISOVER или URSA - Утепление пола 1-го этажа 150 мм - Утепление потолка мансарды 150 мм - Утепление пола в моечном отделении Керамзит |
|
Утепление стен |
- Утепление стен мансарды 150 мм |
|
Пол |
черновой пол: обрезная доска толщиной 20 мм Обработан антисептиком чистовой пол: Сухая шпунтованная доска толщиной 36 мм |
|
Окна |
Окна ПВХ с фурнитурой: размер ширина 0,9 х высота 1,1м. в количестве – 3 шт. размер ширина 1,5 х высота 1,1м. в количестве – 2 шт. размер 0,4х0,4м. в количестве – 1 шт. размер 0,5х0,5м. в количестве – 1 шт. |
|
Двери |
Входная металлическая утепленная размер 1.8х0.8 м -1шт В помывочную каркасная -1шт В парную каркасная осиновая -1шт В кладовую -1шт |
|
Сантехника |
отсутствует |
|
Крыша |
Двухскатная, конек 3,3 м. фронтоны обшиты имитацией бруса. |
|
Кровля |
Металлочерепица цвет коричневый |
|
Высота потолка |
Прямой потолок 2,15 м ± 5см |
|
Электрика |
Без электрики |
|
Карнизы кровли |
Подшивка на 3 доски вагонки . угловые нащельники из вагонки. |
|
Мебель |
Скамейки и стол по чертежу |
|
Внутренние перегородки |
Каркасно-щитовые, обшитые вагонкой хвойных пород древесины |
|
Внутренняя отделка |
Потолок 1-го этажа и мансарды подшивается вагонкой хвойных пород древесины класса «А-В». Перегородки и стены мансарды обшиваются имитацией бруса класса «А-В». На стыки углов стен, потолка и пола прибивается плинтус. На полу в моечном отделении сливной трап |
|
Парное отделение: потолок, перегородки и стены обшиваются осиновой вагонкой класса «А-В» . Под вагонкой по периметру прокладывается алюминиевая фольга. На стыки углов стен, потолка и пола прибивается плинтус. |
|
|
В парном отделении |
Двухъярусные осиновые полки из цельной шлифованной сухой доски толщиной 28 мм, 2 отдушины для проветривания: -1 вверху и -1 внизу за печкой |
|
Печь |
Ермак-12 с теплообменником, выносным баком и фурнитурой для подключения в моечном отделении, обложенная кирпичём |
|
Дополнительно |
Деревянная лестница на мансардный этаж. Ступени ко входу |




