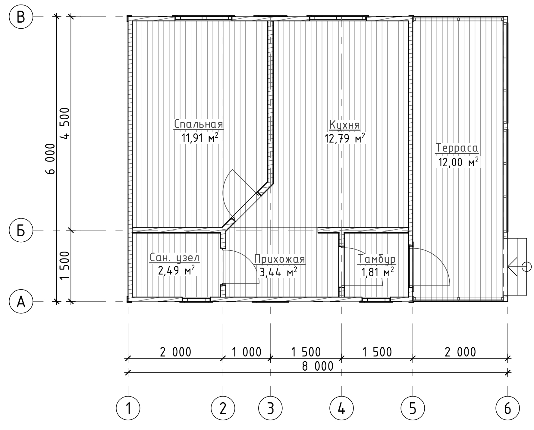
Дом 1эт. 6х8м
Оставьте заявку
Комплектация дома
|
Спецификация дома со сборкой на участке |
|
|
Фундамент |
Заказчик устанавливает своими силами либо 3 лицом (свайно -ж/б) - 20 шт |
|
Стены (сруб) |
Профилированный брус прямого прострога сечение 92 х 142 мм в чистом виде. Сборка на пружинные блоки. Межвенцовая прокладка льно полотно Джут |
|
Половые лаги |
Выполнены из доски 50 х 150 мм |
|
Пароизоляция |
Изоспан А, Изоспан В |
|
Утеплитель пол и потолок |
Тепло Knauf - Утепление пола 100 мм - Утепление потолка 100 мм |
|
Утепление стен |
Нет |
|
Пол |
Сухая шпунтованная доска толщиной 36 мм |
|
Окна |
деревянные окна с фурнитурой: размер ширина 0,6 х высота 0,6 м в количестве – 2 шт размер 1,2 х 1 м в количестве – 2 шт чердачное окно размер ширина 0,6 х высота 0,6 м в количестве – 1 шт |
|
Двери |
Входная металлическая утепленная размер 1.8 х 0.8 м - 1 шт В тамбур и спальную филенчатые - 1.8 х 0.8 м - 2 шт |
|
Сантехника |
Отсутствует |
|
Крыша |
Двускатная, конек 2 м. Фронтоны обшиты имитацией бруса |
|
Кровля |
Металлическая |
|
Высота потолка |
Прямой потолок 2,3 м ± 5см |
|
Электрика |
Отсутствует |
|
Карнизы кровли |
Подшивка на 3 досоки вагонки . угловые нащельники из вагонки. |
|
Антисептирование |
Снаружи – колерованный антисептик |
|
Внутренние перегородки |
Каркасно-щитовые, не утепленные |
|
Внутренняя отделка |
Потолок, перегородки обшиваются вагонкой хвойных пород древесины класса «А-В». На стыки углов стен, потолка и пола прибивается плинтус. |
|
Покраска |
Отсутствует |
|
Печь |
Отсутствует |
|
Водосточная система |
Отсутствует |
|
Дополнительно |
Ступени ко входу из обрезной доски |



